Casa DJ

bELO HORIZONTE, minas gerais | 2021

Residência unifamiliar idealizada para um jovem casal e situada no bairro Castelo, a Casa DJ é um exemplo de projeto compacto e eficiente.

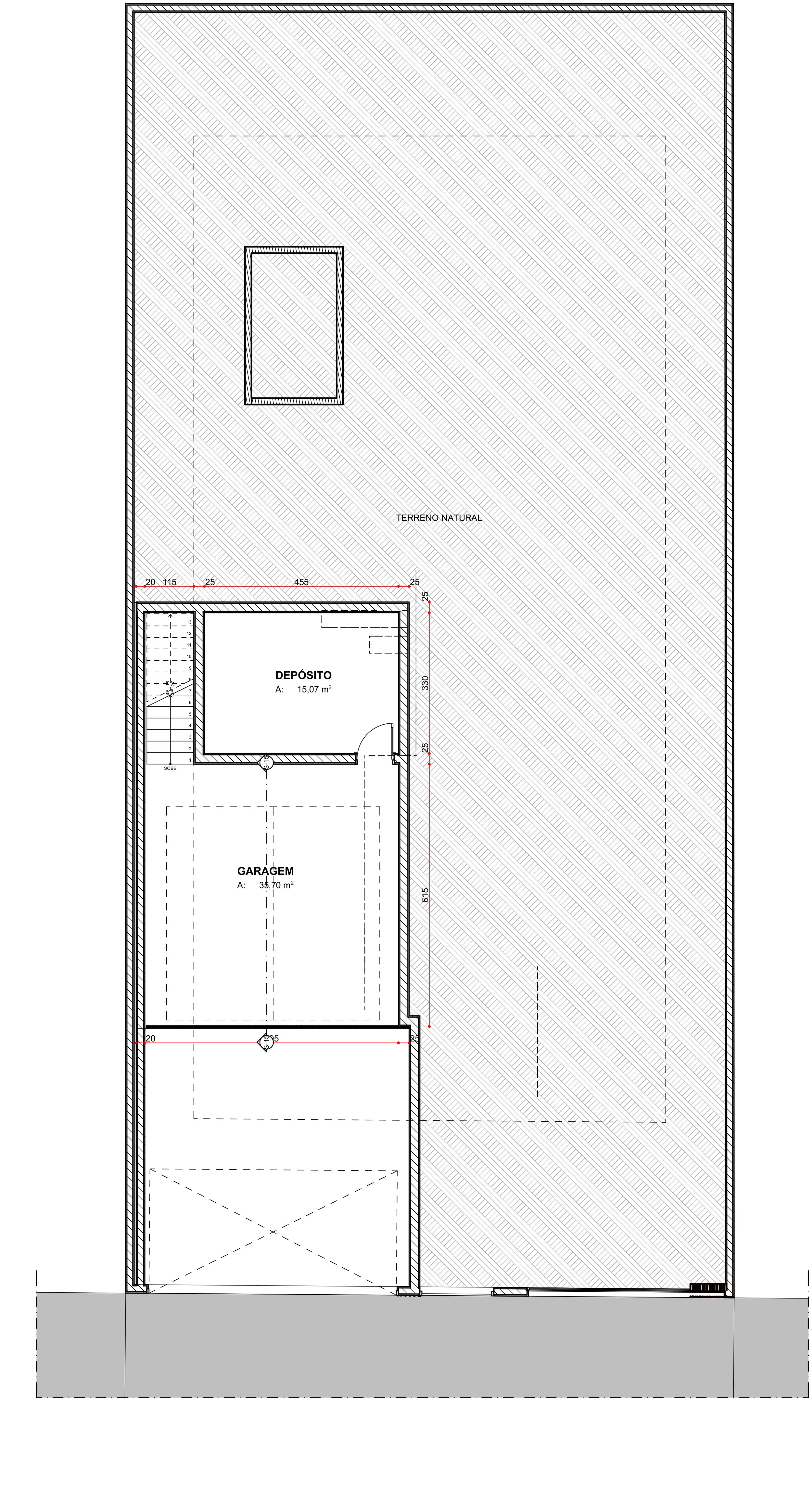
Disposto em um entorno bem edificado e lote com construção já existente, o projeto consta com um programa bem completo, composto pelo bloco social no pavimento térreo , com o hall, jantar e cozinha integrados, área gourmet, sala de estar e um escritório/quarto de hóspedes - estes mais íntimos. Isso tudo além de contar com um setor de serviços completo, com despensa, depósito e lavabo. O mesmo hall também faz a transição para o bloco privado, no segundo andar, com uma escada que leva para o segundo pavimento, com 3 suítes completas.

Outro aspecto interessante do projeto, foi o uso de duas fachadas laterais cegas que escondem o bloco íntimo dos lotes vizinhos edificados.

Entendendo-se que a essência do lar é traduzir a sua habitabilidade a partir das vivências individuais optou-se por uma cartela de materiais neutros, onde o cimento queimado, tons de cinza e amadeirados se destacam em seus ambientes internos, refletindo as preferências dos clientes.

 

 
2107. CASA DJ.AP_R00_1 - CENA 01.jpg
2107. CASA DJ.AP_R00_1 - CENA 02.jpg
2107. CASA DJ.AP_R00_1 - CENA 17.jpg
2107. CASA DJ.AP_R00_1 - CENA 11.jpg
2107. CASA DJ.AP_R00_1 - CENA 04.jpg
2107. CASA DJ.AP_R00_1 - CENA 10.jpg
2107. CASA DJ.AP_R00_1 - CENA 06.jpg
2107. CASA DJ.AP_R00_1 - CENA 25.jpg
2107. CASA DJ.AP_R00_1 - CENA 09.jpg
2107. CASA DJ.AP_R00_1 - CENA 13.jpg
2107. CASA DJ.AP_R00_1 - CENA 21.jpg
2107. CASA DJ.AP_R00_1 - CENA 22.jpg
2107. CASA DJ.AP_R00_1 - CENA 31.jpg
2107. CASA DJ.AP_R00_1 - CENA 28.jpg